Premiere Management Commercial/Industrial

Commercial / Industrial

Commercial/Industrial Listings on Premiere Management

Commercial Properties Commercial / Industrial

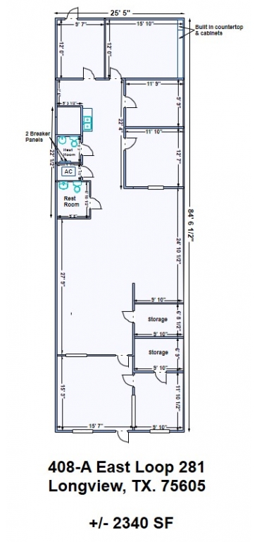
408-A E. Loop 281 in Longview *NEW LOWERED PRICE*

For rent
408-A E. Loop 281, Longview, 75605, Texas
  • Square feet: 2340 Sq. Ft.
  • Bathroom: 2
  • DEPOSIT: $2730
  • AVAILABILITY: Available Now
  • Category: Commercial / Industrial

$ 2,340 / Month

Description

2,340 SF Office/Retail Space with LOOP FRONT Access in Longview, TX

GREAT reception area, work space, private offices, 2 bathrooms

Located between Judson Road and Fourth Street

Covered front porch & ample parking

Located on .46 Acres

$433 NNN

 Features

Base Information

Bath
2
Square feet
2340.00 Sq. Ft.

Land Information

Total acres
0.46 Hectares
Square feet
2340 Sq. Ft.

Location

Please let us know your friend's name.
Please let us know your friend's email address.
Please let us know your name.
Please let us know your email address.
Please tell your friend what you like about this property.
Invalid Input